Oak house
Type: Private house
Project: 2017-2019
Size: 150 m²
Team: Aleksandr Zverev, Ingrid Aasoja-Zverev, Teresa Malmre
Collaborators: AZIA Arhitektid OÜ
Civil engineering: ARSINEJA
Photos: Martin Siplane
Project: 2017-2019
Size: 150 m²
Team: Aleksandr Zverev, Ingrid Aasoja-Zverev, Teresa Malmre
Collaborators: AZIA Arhitektid OÜ
Civil engineering: ARSINEJA
Photos: Martin Siplane





Asukoht
Kinnistu asub Harjumaal. Kinnistu on suur. Elamu on projekteeritud kinnistu keskele suure saja-aastase tamme kõrvale. Sisepääs kinnistule ja hoonesse on põhja poolt. Hoone piklik maht on paigutatud põhja-lõuna suunaga risti.
Arhitektuur
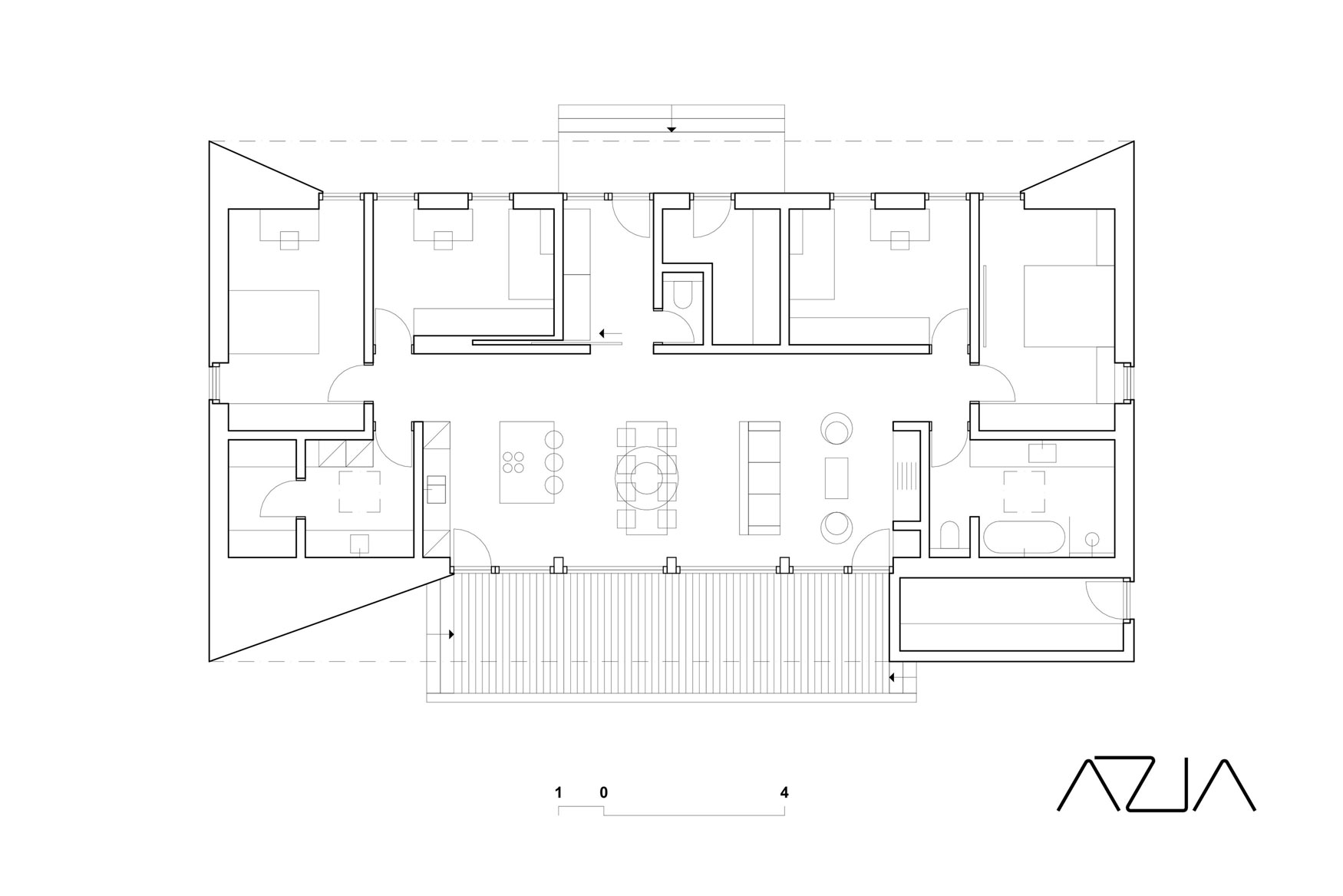
Elamu arhitektuuri lahendus on viisakas ja vaoshoitud. Hoone on ühekorruseline, madala viilkatusega piklik maht. Abihoone katuse räästa alla hoone külgedesse on integreeritud abiruumid (kuurid). Katuse räästas ühelt poolt katab peasissepääsu ja teiselt poolt osaliselt väliterrassi. Hoone plaan on sümmeetriline, kus sisenemine toimub hoone keskelt. Eesruumist pääseb otse elutuba koos kamina ja avatud köögiga. Elutoa kahes otsas niššides asuvad pääsud tubadesse, mis on orienteeritud põhja suunas. Samuti pääseb nende niššide kaudu abiruumidesse ja vannituppa.
Kinnistu asub Harjumaal. Kinnistu on suur. Elamu on projekteeritud kinnistu keskele suure saja-aastase tamme kõrvale. Sisepääs kinnistule ja hoonesse on põhja poolt. Hoone piklik maht on paigutatud põhja-lõuna suunaga risti.
Arhitektuur
Elamu arhitektuuri lahendus on viisakas ja vaoshoitud. Hoone on ühekorruseline, madala viilkatusega piklik maht. Abihoone katuse räästa alla hoone külgedesse on integreeritud abiruumid (kuurid). Katuse räästas ühelt poolt katab peasissepääsu ja teiselt poolt osaliselt väliterrassi. Hoone plaan on sümmeetriline, kus sisenemine toimub hoone keskelt. Eesruumist pääseb otse elutuba koos kamina ja avatud köögiga. Elutoa kahes otsas niššides asuvad pääsud tubadesse, mis on orienteeritud põhja suunas. Samuti pääseb nende niššide kaudu abiruumidesse ja vannituppa.
Välisviimistlus
Hoone seinte välisviimistluses kasutatakse vertikaalset lehisest puitlaudist ja osaliselt tumehalli täismasskiudbetoon plaate. Katusekatteks valtsplekk, toon tumehall. Aknad ja uksed on puitraamidega, detailid on plekist, toon tumehall.
Konstruktsioon
Hoone kandvad seinad ja vaheseinad on väikeplokkidest, hoone katuse konstruktsioon on monteeritavatest puitfermidest, hoone vundament on lintvundament betoonist sokliga.
Hoone seinte välisviimistluses kasutatakse vertikaalset lehisest puitlaudist ja osaliselt tumehalli täismasskiudbetoon plaate. Katusekatteks valtsplekk, toon tumehall. Aknad ja uksed on puitraamidega, detailid on plekist, toon tumehall.
Konstruktsioon
Hoone kandvad seinad ja vaheseinad on väikeplokkidest, hoone katuse konstruktsioon on monteeritavatest puitfermidest, hoone vundament on lintvundament betoonist sokliga.
