Rock house
Type: Private house
Project: 2022-2025
Completed: 2025
Size: 245 m²
Team: Aleksandr Zverev, Ingrid Aasoja-Zverev, Giulia Cosentino, Aili Aasoja
Collaborators: AZIA Arhitektid OÜ + Aasoja Projekt AS
Civil engineering: Eiki Taaksalu
Main contractor: Hucon Ehitus OÜ
Photos: Martin Siplane
Project: 2022-2025
Completed: 2025
Size: 245 m²
Team: Aleksandr Zverev, Ingrid Aasoja-Zverev, Giulia Cosentino, Aili Aasoja
Collaborators: AZIA Arhitektid OÜ + Aasoja Projekt AS
Civil engineering: Eiki Taaksalu
Main contractor: Hucon Ehitus OÜ
Photos: Martin Siplane










Asukoht
Krunt asub Saue vallas. Juurdesõiduteed, kõnniteed ning sissepääsud krundile puuduvad.
Uus elamu kavandatakse vastavalt detailplaneeringule moodsa arhitektuurikeelega. Kavandatud elamu on 2-korruseline moodne viilkatusega hoone.
Uus hoone paigutatakse krundi keskele.
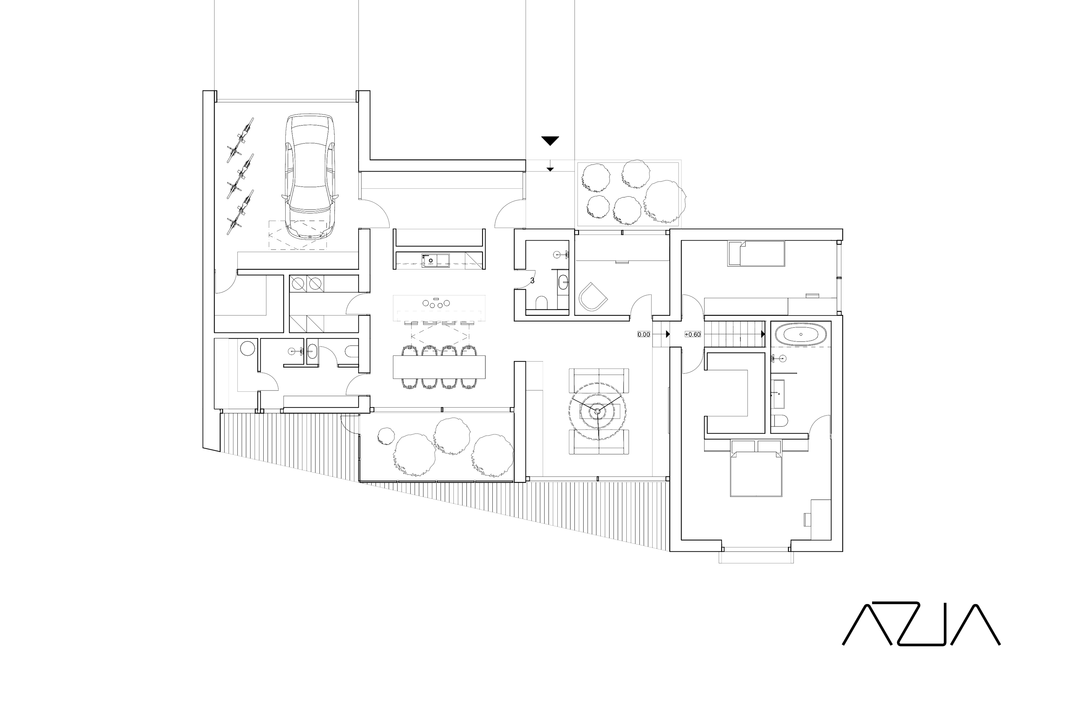
Peasissepääs hoonesse on selle põhja küljest. Kinnistu on jagatud erinevateks funktsionaalseteks osadeks: sisenemise alaks, aia alaks ja hoovi alaks.
Liikumine
Sissepääs kinnistule on kinnistu ida küljelt. Eraldatud on jalakäijate ja autode sissepääs. Kinnistul on 3 autoparkimiskohta sissesõiduvärava juures.
Projektiga tagatakse parkimisvõimalus oma kinnistu piirides. Kolm parkimiskohta rajatakse sissesõidu vahetusse lähedusse.
Tänavamaa piires lahendatakse sõidutee ja krundi sisese liiklusala ühendus betoonkivisillutisega. Kinnistusisesed kõnniteed ja sõiduteed on samuti kaetud betoonkivisillutisega.
Elamu lõuna ja lääne küljele rajatakse terrass puitlaudise kattega.
Piirdeaed
Kinnistu piiratakse metall-lippidest betoonsoklil piirdeaiaga. Jalg- ja autovärava vaheline sein ning aia sokkel on puhasvalu betoonist. Väravamüüri sisse on integreeritud postkast ja sellele kinnitatakse aadressi number. Aia kõrgus on 1,2 m. Jalgvärav on käändvärav, autovärav on liugvärav.
Maastik ja haljastus
Kinnistule kavandatakse uus põõsas- ja madalhaljastus hoone lähiümbruses. See loob krundi loodenurka meeldiva privaatse keskkonna. Haljastust planeerides on arvestatud, et seda on lihtne hooldada. Ette on nähtud tihe hekk (näiteks harilik kadakas või värd-jugapuu) krundi loodenurka. Hoone vahetus läheduses rajatakse murukate.
Arhitektuur
Uus projekteeritud hoone on ühe-kahekorruseline. Hoone astmeline maht on kaetud ühe kaldega katusega, mis langeb idast läände. Hoone peapääs ja pääs garaaži on põhja küljest, terrass ja talveaed - lõuna küljest.
Krunt asub Saue vallas. Juurdesõiduteed, kõnniteed ning sissepääsud krundile puuduvad.
Uus elamu kavandatakse vastavalt detailplaneeringule moodsa arhitektuurikeelega. Kavandatud elamu on 2-korruseline moodne viilkatusega hoone.
Uus hoone paigutatakse krundi keskele.
Peasissepääs hoonesse on selle põhja küljest. Kinnistu on jagatud erinevateks funktsionaalseteks osadeks: sisenemise alaks, aia alaks ja hoovi alaks.
Liikumine
Sissepääs kinnistule on kinnistu ida küljelt. Eraldatud on jalakäijate ja autode sissepääs. Kinnistul on 3 autoparkimiskohta sissesõiduvärava juures.
Projektiga tagatakse parkimisvõimalus oma kinnistu piirides. Kolm parkimiskohta rajatakse sissesõidu vahetusse lähedusse.
Tänavamaa piires lahendatakse sõidutee ja krundi sisese liiklusala ühendus betoonkivisillutisega. Kinnistusisesed kõnniteed ja sõiduteed on samuti kaetud betoonkivisillutisega.
Elamu lõuna ja lääne küljele rajatakse terrass puitlaudise kattega.
Piirdeaed
Kinnistu piiratakse metall-lippidest betoonsoklil piirdeaiaga. Jalg- ja autovärava vaheline sein ning aia sokkel on puhasvalu betoonist. Väravamüüri sisse on integreeritud postkast ja sellele kinnitatakse aadressi number. Aia kõrgus on 1,2 m. Jalgvärav on käändvärav, autovärav on liugvärav.
Maastik ja haljastus
Kinnistule kavandatakse uus põõsas- ja madalhaljastus hoone lähiümbruses. See loob krundi loodenurka meeldiva privaatse keskkonna. Haljastust planeerides on arvestatud, et seda on lihtne hooldada. Ette on nähtud tihe hekk (näiteks harilik kadakas või värd-jugapuu) krundi loodenurka. Hoone vahetus läheduses rajatakse murukate.
Arhitektuur
Uus projekteeritud hoone on ühe-kahekorruseline. Hoone astmeline maht on kaetud ühe kaldega katusega, mis langeb idast läände. Hoone peapääs ja pääs garaaži on põhja küljest, terrass ja talveaed - lõuna küljest.
Kui põhjakülg on sopiline, siis lõuna külg on raamitud varikatusega selgeks kujuks.
Hoone sisemist maailma loovad esimese korruse eritasandid (garaaž (-0,4), elutuba, köök, saun, stuudio (0,0), magamistoad (0,4) ning sauna kompleksi ja garaaži poolt magamistubade plokki suunas tõusev katus. Sauna ja magamistubade plokki vahele jäävad köök, söögituba, kabinet, ja elutuba on kõrgema laega ruumid. Teisele korrusele jäävad 2 lastetuba ja kaldpõrandaga hall. Katus on mõnedes kohtades läbilõigatud katuseakendega. Nii ülevalt valgust on antud söögituppa, garaaži ja teise korruse halli.
Hoone viimistlus on karge ja minimalistlik. Betoonist sokkel ja astmed on tehtud ilma faasita puhta valuna. Hoone on viimistletud termotöödeldud harjatud kuusest laudisega (SH, 20X95 mm, samm 100 mm) ja suuremate kiudbetoonist paneelidega (tumehall ja helebeež, täismass kiudbetoon plaat, 8 mm). Fassaadi materjalid on hoolega lõigatud ja sama hoolega paigutatud. Iga nurk ja iga element, iga pööre on arhitekti poolt läbi mõeldud.
Aknad on peidetud aknaraamidega. Väljast vaadates tekib arhitektuurse maketti efekt, kus klaas liitub otse fassaadiga. Ühe kaldega katus on peidetud äravooluga valtsplekkkatus (tumehall, RR23, min 06 mm).
Energiatõhusus ja sisekliima
Kõik eluruumid on loomuliku valgusega. Hoone hea sisekliima tagamiseks on suurte akende varjestuseks kasutatud laia katuseräästast ja välisribakardinaid (passiivne kaitse).
Energia tootmiseks kasutatakse õhkvesi soojuspumpa.
Kõikides ruumides on põrandaküte, mis võimaldab efektiivset küttesüsteemi rakendamist.
Hoone ventilatsioon on soojatagastusega.
Konstruktsioonid ja pinnakatted
Hoone seinad, sealhulgas siseseinad laotakse väikebetoonplokkidest. Hoone vahelagi on raudbetoon õõnespaneelidest ja monoliitsest raudbetoonist. Hoone katus on puitfermidest. Trepp on monoliitsest raudbetoonist. Hoone välisviimistluses kasutatakse monoliitset raudbetooni (sokkel), tumehalle ja valgeid kiudtsementplaate, puitlaudist (väliseinaseinad), tumehalli valtsplekki (katus) ja kirgast klaasi (aknaklaasid).
Siseruumide siseseinad pahteldatakse ja värvitakse. Eluruumide põrandad kaetakse puitparketiga, wc ja abiruumide põrandad ja seinad - kiviplaadiga.
Hoone sisemist maailma loovad esimese korruse eritasandid (garaaž (-0,4), elutuba, köök, saun, stuudio (0,0), magamistoad (0,4) ning sauna kompleksi ja garaaži poolt magamistubade plokki suunas tõusev katus. Sauna ja magamistubade plokki vahele jäävad köök, söögituba, kabinet, ja elutuba on kõrgema laega ruumid. Teisele korrusele jäävad 2 lastetuba ja kaldpõrandaga hall. Katus on mõnedes kohtades läbilõigatud katuseakendega. Nii ülevalt valgust on antud söögituppa, garaaži ja teise korruse halli.
Hoone viimistlus on karge ja minimalistlik. Betoonist sokkel ja astmed on tehtud ilma faasita puhta valuna. Hoone on viimistletud termotöödeldud harjatud kuusest laudisega (SH, 20X95 mm, samm 100 mm) ja suuremate kiudbetoonist paneelidega (tumehall ja helebeež, täismass kiudbetoon plaat, 8 mm). Fassaadi materjalid on hoolega lõigatud ja sama hoolega paigutatud. Iga nurk ja iga element, iga pööre on arhitekti poolt läbi mõeldud.
Aknad on peidetud aknaraamidega. Väljast vaadates tekib arhitektuurse maketti efekt, kus klaas liitub otse fassaadiga. Ühe kaldega katus on peidetud äravooluga valtsplekkkatus (tumehall, RR23, min 06 mm).
Energiatõhusus ja sisekliima
Kõik eluruumid on loomuliku valgusega. Hoone hea sisekliima tagamiseks on suurte akende varjestuseks kasutatud laia katuseräästast ja välisribakardinaid (passiivne kaitse).
Energia tootmiseks kasutatakse õhkvesi soojuspumpa.
Kõikides ruumides on põrandaküte, mis võimaldab efektiivset küttesüsteemi rakendamist.
Hoone ventilatsioon on soojatagastusega.
Konstruktsioonid ja pinnakatted
Hoone seinad, sealhulgas siseseinad laotakse väikebetoonplokkidest. Hoone vahelagi on raudbetoon õõnespaneelidest ja monoliitsest raudbetoonist. Hoone katus on puitfermidest. Trepp on monoliitsest raudbetoonist. Hoone välisviimistluses kasutatakse monoliitset raudbetooni (sokkel), tumehalle ja valgeid kiudtsementplaate, puitlaudist (väliseinaseinad), tumehalli valtsplekki (katus) ja kirgast klaasi (aknaklaasid).
Siseruumide siseseinad pahteldatakse ja värvitakse. Eluruumide põrandad kaetakse puitparketiga, wc ja abiruumide põrandad ja seinad - kiviplaadiga.
